0763-2350-2731
PRODUCT
产品中心
发布时间:2025-11-11 点击量:
虹口北外滩上演了今年上海最激烈的土拍争夺战,总计七家房企参与围猎 ,最终定格溢价率46.33%,刷新上海规则调整后最高数据。
绿城潮鸣外滩售楼处电线绿城外滩新百年一号作品,加上“潮鸣”系产品,还是非常值得期待!将推4栋10-29F高层,194套建面约190-307m²大平层!
绿城拍下的这块地在功能上是纯住宅用地,但经过举牌中间的竞高品质环节,需要建设的配套面积有了大幅增长。
公共服务设增加到2600㎡,高端人才住房配建比例达到2%,也在900㎡以上。
绿城潮鸣外滩售楼处电话☎:✔✔这对一个顶豪项目来说的确算个不利影响,毕竟在那样的客群中,隐私感可能前所未有的重要。
绿城潮鸣外滩售楼处电话☎:✔✔车行出入口分别在东西两侧,超长直坡,一方面是更好的驾驶体验,一方面是考虑豪车超低底盘而减小了坡度。
绿城潮鸣外滩售楼处电话☎:✔✔这样的做法也算部分回应了一侧开放的规划要求,同时最大程度实现了封闭管理。
可以看到,为了消化约2600㎡的配套用房,2号楼延伸出来的配套用房做了两层,向北衔接车库出入口,也充当了这一段围墙的作用。
绿城潮鸣外滩售楼处电话☎:✔✔好消息是如果按计划推进,会与项目的施工周期重合,后续影响比较小,之后从北外滩过江,又多了一条全新选择。
不过上海一切滨江豪宅,谈论产品之前都得先回答一个问题,能看到多少黄浦江。
简单做了一个实景模拟,可以看到虽然地块北侧还有一些高层建筑,但是南向视野非常开阔,且正对陆家嘴天际线。
绿城潮鸣外滩售楼处电话☎:✔✔在一百米限高下略显一点点可惜,城市云端豪宅感觉好像还差了一口气。考虑到还有一些小高层项目在南侧,预算充分的朋友,建议还是至少冲20层以上。
绿城潮鸣外滩售楼处电线号楼应该为双楼王,均为正南朝向百米高层,两梯两户配置。
绿城潮鸣外滩售楼处电线号楼底层结合了人才配套用房,且在地块最北侧,主打的应该是项目内部的景观视野,楼间距有66米以上,也相当不错。
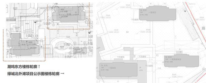
绿城以公建化立面的设计风格起家,现代化、扁平化、精致化,一直是当家关键词。
绿城潮鸣外滩售楼处电话☎:✔✔所谓公建化就是更接近玻璃幕墙写字楼,而不像传统住宅那样,看起来有很多凹凸。其实潮鸣东方的产品不是那么“绿城”,我们可以从两个楼栋轮廓上就能看出差别。
绿城潮鸣外滩售楼处电话☎:✔✔很明显,这次立面更“收敛”一些,我们通过简单建模,也选了几个角度供大家参考。
绿城潮鸣外滩售楼处电话☎:✔✔可以看到两栋楼王完全错开,稍后一些的3#没有被遮挡视野
绿城潮鸣外滩售楼处电话☎:✔✔这样的平面似乎进一步回到了绿城的产品舒适区。凤起系列在绿城的老家一炮而红之后的确算得上“做一成一”,“凤起潮鸣”也逐渐成为城市级居住标杆。
绿城目前TOP系列,低密主要是“庐系”和“玫瑰系”,前者主打东方意蕴,后者则是王牌经典法式。
绿城潮鸣外滩售楼处电话☎:✔✔高层产品系列中,其一是“凤起”,其二是“月华”,后者可能大家还不太熟悉,杭州的第一个“月华”交付不久,第二座落子南京。相比“凤起”,会更强调艺术感与生息:
绿城潮鸣外滩售楼处电话☎:✔✔来到上海,徐汇滨江项目强调滨水而居,最后在凤起系中着重选了“潮鸣”二字,北外滩地块似乎也能回应品牌定调。不过,绿城的另一条TOP系,月华系在上海还没有落子,或许另立标杆也是一个好选择。
绿城潮鸣外滩售楼处电话☎:✔✔从左至右:苏州凤起潮鸣,义乌凤起潮鸣,潮鸣东方
我们从后台拉取了近三年上海新建商品住宅的成交数据,5000万总价以上的成交总计1357套。
绿城潮鸣外滩售楼处电话☎:✔✔这些顶豪的区域分布中,黄浦依然断层领先,浦东和徐汇紧随其后,下一顺位就是虹口。但彼此之间的差距,大概也就是一个顶豪项目。
绿城潮鸣外滩售楼处电话☎:✔✔北外滩起步刚过五年,作为陆家嘴后上海最大规模的城市建设项目,以“世界级会客厅”为打造目标的板块中心,以及与外滩-陆家嘴都隔水对望的地理位置。
绿城潮鸣外滩售楼处电话☎:✔✔可以很清晰地看到,除了环黄浦腹地新天地核心的项目之外,其余项目沿着江边依次排开。
沿江每一段,几乎都有一个标杆项目稳稳驻立。这或许也点明了一个事实,撑住北外滩朝着20万住宅单价前进的,不是虹口,而是黄浦江。
绿城北外滩项目向东大约800米,虹房手上还拿捏着一块地,坐镇北外滩东北角,由去年协议出让获取,楼板价8.4万/㎡。
绿城潮鸣外滩售楼处电话☎:✔✔由两个小地块以及公共绿地组成,按照出让要求,两个小地块均为纯住宅地块,上限面积为7.5万方,可通过连廊沟通。
传闻已经有团队在沟通接触落地方案,让我们静静等待北外滩的下一位挑战者登场。
绿城潮鸣外滩售楼处电话☎:✔✔新房方面,北外滩核心区内,中粮北外滩壹号项目姗姗来迟。售楼处展厅已经在近期开放,项目由高层和风貌别墅组合而成,关于这个项目我们曾经写过一篇项目解读,感兴趣的朋友可以点击跳转阅读。
绿城潮鸣外滩售楼处电话☎:✔✔另一边,中建在今年六月,以土地包的形式拿下建发山寿里地块开发权益,或许在不久的将来也会端上台面。
4、什么是房地产业:从事房地产开发、建设、经营、管理以及维修、装饰和服务的综合性产业。
5、什么是房地产开发:是指在依法取得土地使用权的土地上按照使用性质的要求进行基础设施、房屋建筑的活动。
8、征用土地是指:国家为了公共利益的需要,可依照法律规定对集体所有的土地实行征用。
9、什么是土地所有权:是指国家或集体经济组织对国家土地和集体土地依法享有的占有、使用、收益和处分的权能。
10、什么是土地使用权的出让:指国家以协议、招标、拍卖的方式将土地所有权在一定年限内出让给土地使用者,由使用者向国家支付土地使用权出让金的行为。
11、什么是土地使用权转让:是指土地使用者通过出售、交换、赠与和继承的方式将土地使用权再转移的行为。
12、什么是地籍、产籍:是对在房地产调查登记过程产生的各种图表、证件等登记资料,经过整理、加工、分类而形成的图、档、卡、册等资料的总称。
14、熟地是指:已完成三通一平(水、电、道路,土地平整)或七通一平,具备开发条件的土地。
15、什么是宗地:是地籍的最小单元,是指以权属界线、什么是宗地图:是土地使用合同书附图及房地产登记卡附图。它反映一宗地的基本情况。包括:宗地权属界线、界址点位置、宗地内建筑位置与性质、与相邻宗地的关系等。
17、证书附图是指:房地产后面的附图,主要反映房地产情况及房地产所在宗地情况。
18、什么是物业管理:泛指一切有关房地产开发、经营、商品房销售、租赁及售后服务。
19、什么是业主委员会:是在物业管理区域内代表全体业主实施自治管理的组织。是代表
27、期房是如何介定的:房地产开发商拿到商品房预售许可证开始至取得房地产权证大产证或竣工验收合格可以直接入住使用)为止。
29、什么是现房:是指消费者在购买时具备即买即可入住的商品房,即开发商已办妥所售的商品房的大产证(或已经竣工验收合格并交付使用)的商品房。
30、什么是毛坯房:房地产商交付屋内只有门框没有门,墙面地面仅做基础处理而未做表面处理的房叫毛坯房。
33、商品房预售是指:在房地产尚未建成以前,房地产的经销商在取得受买人一定数量的定金后,将期房出售给受买人。
34、商品房现售是指:指房地产开发企业将竣工验收合格的商品房出售给买受人。
37、例出3种以上的安居房的种类:准成本房、全成本房、全成本微利房和社会微利房。
49、框架结构的意思是:以钢筋混凝土浇捣成承重梁柱,再用预制的隔墙分户的结构。
50、开间指的是:一间房屋内一面墙的定位轴线到另一面墙的定位轴线之间的实际距离。
预约来电尊享购房优惠,可预约案场内部销售人员,专业一对一热情服务,让您用专业眼光去买房。楼盘项目全面介绍,本电话为开发商提供线上预约售楼电话,楼盘项目全面介绍(包含楼盘简介,均价,房价,现房,期房,别墅,叠墅,大平层,价格,楼盘地址,户型图,交通规划,备案价,备案名,项目配套,样板间,开盘时间,认筹时间,楼盘详情,售楼处电话,最新消息,最新详情,周边配套,一房一价,最新进展等详情咨询)楼盘详情丨价格丨更多优惠丨机不可失丨欢迎致电丨诚邀品鉴!售楼处位置丨特价房丨工抵房丨剩余房源丨户型图丨最新消息丨免责声明:将文章内容综合来源于网络、只作分享,版权归原作者所有!!如有侵权,请联系我们,我们第一时间处理如有问题欢迎来电咨询,专业一对一热情服务,让您用专业眼光去买房。如果您想了解更多楼盘详情,欢迎提前预约拨打
张雪峰:如果你不好好学习,一旦掉入社会底层,和一群没有素质的人混在一起.....
领跑珠城20万+成交!凯旋新世界,凭何成为全球资本青睐的“恒稳资产”?
阿森纳1-0水晶宫 7连胜+4分领跑英超 6930万新援弑旧主 双核伤退
女儿接力赛摔倒 迅速起身继续奔跑 爸爸立刻换顺序 为女儿完成逆风翻盘 网友:这一刻爸爸不想让他的女儿...
《编码物候》展览开幕 北京时代美术馆以科学艺术解读数字与生物交织的宇宙节律

联系我们
Contact us
SERVICE TIME:08:30-18:30